Экономайзер ЭБ1-646
Экономайзер ЭБ1-646
Описание товара
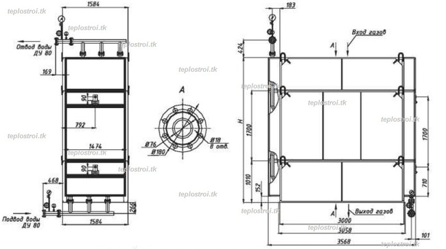
Чугунный блочный экономайзер ЭБ1-646 представляет собой трубчатый теплообменник, в котором питательная вода перед поступлением в котел подогревается до температуры 30 – 40 °С ниже температуры кипения, чтобы предотвратить парообразование и гидравлические удары внутри него. Подогрев происходит за счет теплоты уходящих газов, тем самым повышая КПД котельного агрегата. Экономайзеры состоят из пакетов труб с оребрением, соединенных между собой и заключенных в каркас с теплоизоляционной обшивкой. Комплектуются (по просьбе заказчика) коробом для подвода газов. Движение питательной воды в трубах, составляющих общую поверхность нагрева, - навстречу потоку дымовых газов. Применение чугуна в поверхностях нагрева и соединительных деталях значительно увеличивает срок службы по сравнению со стальными экономайзерами. Использование паровой (П) или газоимульсной (И) очистки позволит постоянно иметь чистые поверхности нагрева, а значит - экономить топливо при минимальном обслуживании и полном исключении ручного труда. По согласованию с Заказчиком экономайзер может комплектоваться устройством очистки поверхностей нагрева ГУВ (генератором ударных волн). Поставляется собранным, одним транспортабельным блоком. Монтаж экономайзера сводится к установке его на фундамент, изготовлению и установке подводящего газового короба с взрывными предохранительными клапанами, подключению его к питательным трубопроводам котла. Монтаж системы очистки – в соответствии с проектом котельной и паспортом. Для обеспечения газоплотности между экономайзером и фундаментом должен прокладываться листовой или шнуровой асбест. Крепление к фундаменту выполняется приваркой нижней рамы экономайзера к закладным элементам. Верхний газовый короб приваривается к экономайзеру сплошным швом. У двухколонковых экономайзеров ЭБ перегородки экономайзера и газового короба должны быть сварены между собой. После окончания монтажа – подвергнуть экономайзер гидравлическому испытанию. Устанавливаются индивидуально на котел или на группу котлов низкого давления (до 2,4 МПа) и малой мощности и могут отключаться от котлов как по газовому, так и по водяному тракту.
Подробнее

Экономайзер ЭБ1-646 - 64243

Уточняйте наличие
Уточните цену 0 0 USD

Минимальный заказ: 1 шт

Возможность поставки: 3 шт/в месяц

Теплоэнергетическая Компания
Не проверенный поставщик
Россия
Информация по доставке

Рассчитайте и совершите грузоперевозку в любую точку мира с помощью Qoovee Logistics.

Гарантия отгрузки в срок и безопасность оплаты Рассчитать доставку от Qoovee

Похожие товары

Поставщик:
"Узлегпром"
Напишите нам, мы онлайн!